完全予約制

最高の住み心地の、平屋風二階建て。

2階建てながら平屋の利便性を実現する 平屋心地の住まいです。ペットと暮らす工夫が満載なのも魅力。

エアコン1台で常春を実現する、全館空調YUCACOを搭載しています。

奥州いえ博展示場

平屋のような開放感と明るい住空間を実現した、2階建ての住まいです。
グレートーンで統一されたLDKや洗面化粧台はおしゃれな落ち着いた空間で、こだわりのタイルが使用されたパウダールームも魅力。
ペットと暮らす工夫も満載で、壁にはキャットウォークを設置。人とペットの楽しく幸せな住空間を実現しました。
ペンダントライトが照らすアイランドキッチンは明るく広々としており、毎日の家事が楽しくなります。

         

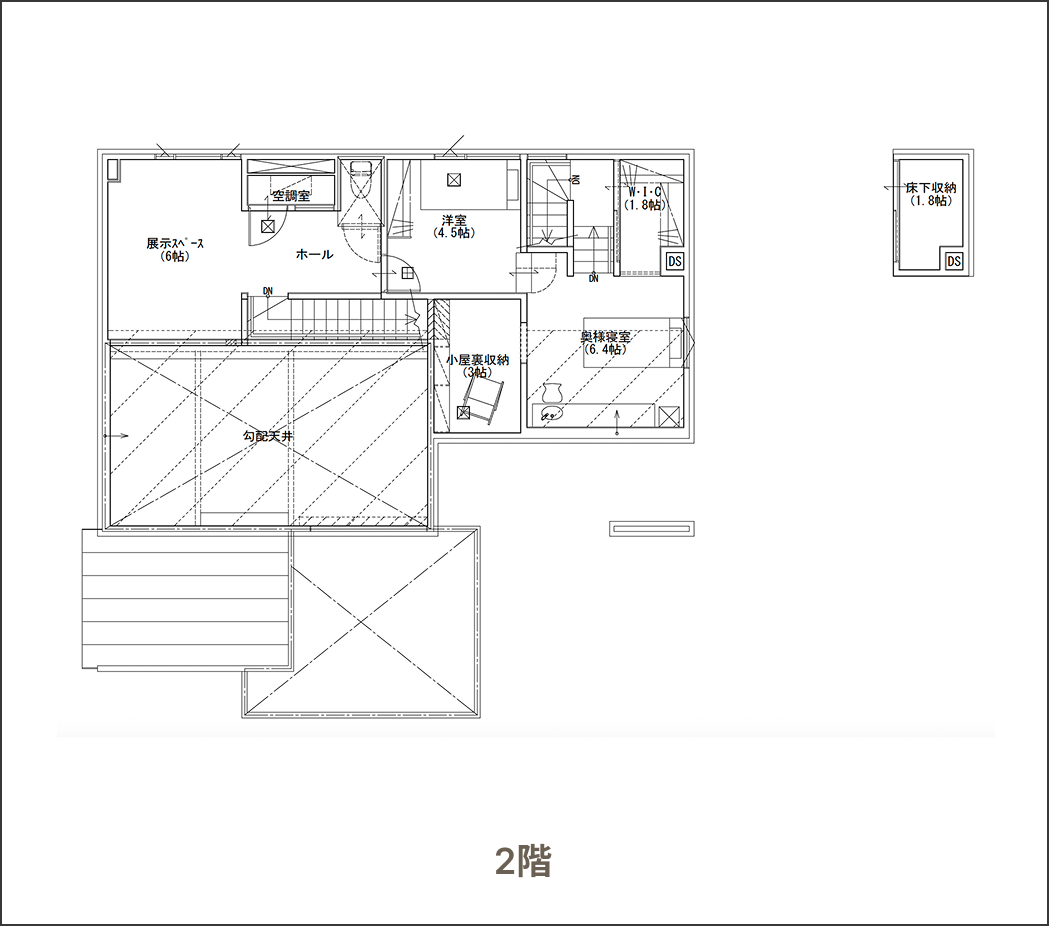
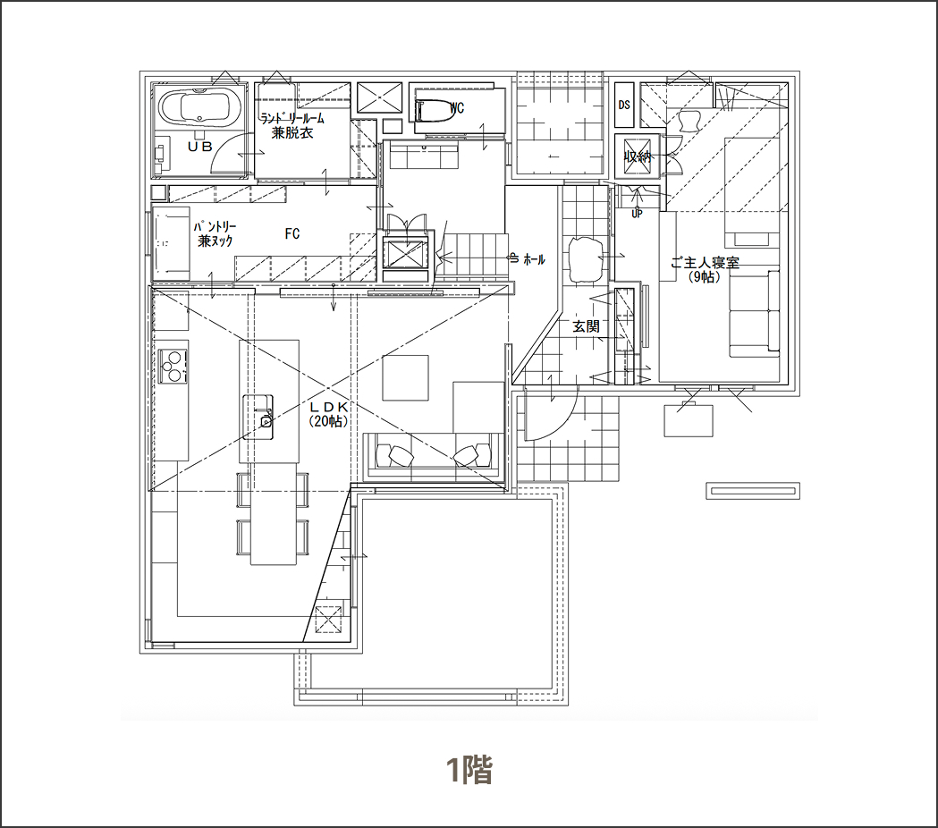
Floor Plan 間取り